Óbester Óvoda
2025
Budapest IX. kerület, Óbester utca 5-7. szám alatti ingatlanon létesülő óvoda, országos tervpályázat, 2. díj
Építész tervezők: Biri Balázs, Mantuano Eszter, Rátgéber László, Szabó Levente
Az új óvoda számára kijelölt tervezési terület ideális helyzetben, a Haller park peremén található. A terület a Mester utca felől a parkon keresztül, a Haller utca felől és a Vágóhíd utca felől az Óbester utcán keresztül is megközelíthető, közterületek és a szomszédos, meglévő óvoda telke veszi körbe.
Az új óvoda tervezésénél az alábbi főbb alapvetéseket fogalmaztuk meg:
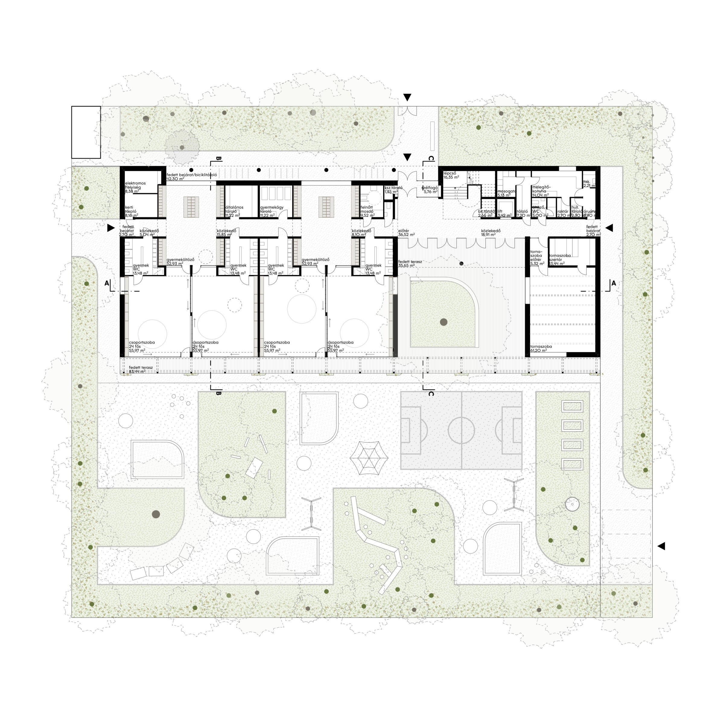
- a legtöbb ZÖLDFELÜLET megtartásának elve: a meglévő értékes hársfák védelme, a központi hatalmas fa meghatározó szerepének erősítése
- a legkisebb “LÁBNYOM” elve: új épület építése a bontandó épület helyén, kompakt, gazdaságosan megépíthető kialakítás, a legkisebb “lábnyom”, a zöldfelület és a játszóudvar területének maximalizálása
- a legoptimálisabb MEGKÖZELÍTÉS elve: a főbejárat egyszerre érhető el könnyedén a fő tömegközlekedési és a lehetséges gépkocsival történő érkezési irányokból, emellett nem teszi túlzsúfolttá a már létező szomszédos óvodabejáratot
- legarányosabb LÉPTÉK elve: zöldtetőkkel, teraszokkal és belső udvarral tagolt léptékhelyes tömeg kialakítása
- a legintenzívebb UDVARKAPCSOLAT elve: csoportszobák és tornaszoba délkeleti tájolással a földszinten, közvetlen kapcsolatban az udvarral, differenciált játszóudvar, változatos belső, külső és átmeneti helyzetek, teraszok, zárt és nyitott udvarok kialakítása
- a leginkább TISZTA ÉS TERMÉSZETES szerkesztés elve: áttekinthető, tiszta és rendet sugárzó, ugyanakkor játékos és változatos téri felépítés
- a legegyszerűbb, de mégis EGYEDI RÉSZLETEK elve: archetipikus terek (pl. tornác), természetes anyaghasználat és változatos részletek, építészeti és belsőépítészeti karakterek


















